
If we want to start the building project somewhere we need to prepare a proper building plan with design & detailing. So, we need to hire some Govt. registered consultant engineer or architects. Designing helps any building to get a better structural analysis and architectural beauty.
We are trying to provide best design services in Siliguri and across West Bengal because we provide each unique project with experienced professionals to execute the project. End to end customer support is another key thing of our company.
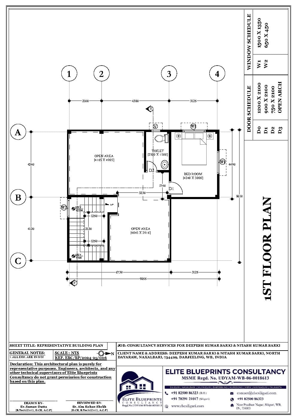
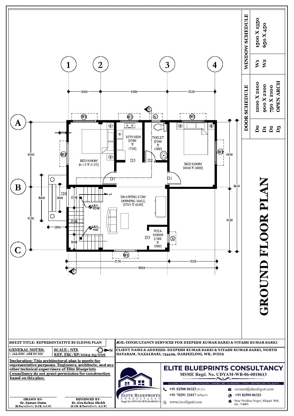
To construct a building or any structure we have to follow some steps. First we have to do a proper planning of that structure and then you can proceed. So, building planning and drawing is the initial step for any kind of structure. Then we must prepare a proper design of that by a design engineer. Designing the building is done by resisting its self weight, earthquake forces, wind thrust and other forces. Building planning and designing is another key part of any project.

The main and first step of any building project is planning. So, building planning plays a vital role. Commercial building plans agree to meet the legal and regulatory requirements. It helps to avoid costly fines. The process of commercial building plan is following below-
In residential building plan; it reflects who you are. It enhances comfort, interior design style, etc. So, a proper residential building plan ensures structural stability.

Building your dream home design in Siliguri is a very exciting and appreciable decision. Here, Elite Blueprint Consultancy is always happy to help and assist in fulfilling your dream. We ensure functionality with creativity. Our field team always supervises the project and ensures every single reflection.
Our building planning and design services include architectural layout planning, structural design, 3D elevation, interior and exterior design, working drawings, and BOQ (Bill of Quantities) preparation. We ensure the design aligns with your functional, aesthetic, and budget requirements.
Proper planning ensures optimal space utilization, safety, cost efficiency, and long-term durability. It helps avoid rework, structural issues, and budget overruns during construction.
The building design process includes:
1. Requirement discussion and site visit
2. Concept and preliminary design
3. 2D architectural drawings
4. Structural and working drawings
5. 3D visualization and detailing
6. Final approval and execution support
Yes. We specialize in designing residential, commercial, and institutional buildings, including houses, apartments, offices, schools, and industrial structures.
Absolutely. We offer building renovation and redesign services, modifying existing layouts to improve functionality, aesthetics, or structural integrity while keeping the core design intact.
The timeline depends on the project’s size and complexity. Typically, a standard residential plan takes 7–15 days, while larger commercial or institutional projects may take 3–6 weeks.
You need to share:
• Plot size and location
• Local building bylaws
• Floor requirements (e.g., G+1, G+2)
• Preferences for layout and design style
• Any special requirements (parking, terrace, vastu, etc.)
Our pricing depends on plot size, design complexity, and scope of work. We provide a detailed quotation after understanding your requirements and site details to maintain full transparency.
You can get started by booking a free consultation or sharing your plot details with us. Our expert team will guide you through design concepts, cost estimates, and approval processes step by step.
Yes, we assist in preparing drawings as per local municipal and structural norms and help with plan sanctioning, vetting, and documentation as required.







